office@alupvcproject.com       ☏  +38165/852-4-222     f facebook   i instagram
Alu & PVC Project  logo- stručna montaža aluminijumske i PVC stolarije
Prozori različitih vrsta i veličina - kompletan asortiman za vaš dom

PVC stolarija po meri – Energetska efikasnost i dugotrajnost

Proizvodimo i ugrađujemo PVC stolariju za objekte u Vršcu, Pančevu i Beogradu, kao i širom Srbije. Naši PVC prozori i vrata izrađeni su od kvalitetnih sistema kao što su Aluplast i DECCO, koji obezbeđuju vrhunsku termo i zvučnu izolaciju. Pored domaćeg tržišta, zahvaljujući CE sertifikatu, PVC stolariju izvozimo i u zemlje EU, uz organizovan prevoz i kompletnu dokumentaciju.
Ako planirate zamenu prozora ili vrata, možda će vas zanimati i naši alu sistemi za dugotrajnu zaštitu i modernu estetiku. Za dodatnu privatnost i zaštitu od sunca, pogledajte naše roletne po meri, a za zaštitu od insekata nudimo komarnike. Takođe, za garaže i skladišne prostore možete razmotriti rolo ili segmentna vrata.

„PVC Stolarija za Vaš Dom – Estetika i Energetska Efikasnost u Jednom…“

Svi materijali koje koristimo pri izradi stolarije ispunjavaju zakonsku propisanu normu termoizolacije i kvaliteta evropske unije.
Za maksimalne performanse PVC sistema, preporučujemo profesionalnu RAL montažu, koja obezbeđuje troslojno zaptivanje spoja između prozora i zida i sprečava kondenzaciju, vlagu i toplotne gubitke.
RAL
sertifikat za PVC stolariju - garancija kvaliteta i bezbednosti
Aluplast logo - vodeći proizvođač PVC stolarije u Evropi

Aluplast pvc profili

Aluplast je vodeći svetski proizvođač PVC profila ,Nemačka kompanija sa sedištem u Karlsrueu, specijalizovana za proizvodnju visokokvalitetnih PVC profila za prozore i vrata. Sa više od 40 godina iskustva i prisustvom u preko 100 zemalja, Aluplast postavlja standarde u energetskoj efikasnosti, dizajnu i inovacijama. Njihovi profili odlikuju se vrhunskom termoizolacijom, dugotrajnošću i ekološkom održivošću, pružajući savremena rešenja za modernu gradnju.
Made in Germany oznaka - PVC stolarija nemačkog porekla i kvaliteta

PVC prozori 

I 

PVC balkonska vrata 

I 

PVC PSK uskočno klizni

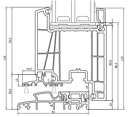
Aluplast Energeto 8000 PVC sistem - tehnološki napredna stolarija

Uf = 0,94 W/m²K

energeto 8000 ED

Made in Germany Aluplast - nemački proizvođač PVC stolarije

- 85mm Ugradna dubina

- Zastakljivanje sa 2 i 3  stakla do 52mm

- Broj komora: 6

- 3 dihtung gume

- Aluskin

cena od € na upit-
Aluplast Ideal 8000 PVC sistem za savremene prozore i vrata

Uf = 1,0 W/m²K

Ideal 8000

Made in Germany Aluplast Ideal 8000 - premium PVC stolarija iz Nemačke

- 85mm Ugradna dubina

- Zastakljivanje sa 2 i 3  stakla do 52mm

- Broj komora: 6

- 3 dihtung gume

- Aluskin

cena od € na upit-
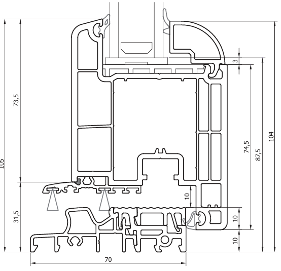
Aluplast Ideal 4000 PVC sistem za standardne prozore i vrata

Uf = 1,3 W/m²K

Ideal 4000

Made in Germany Aluplast ideal prozor - nemački kvalitet PVC prozora

- 70mm Ugradna dubina

- Zastakljivanje sa 2 i 3  stakla do 41mm

- Broj komora: 5

- 2 dihtung gume

- Aluskin

cena od € na upit-

PVC ulazna vrata 

I 
Aluplast Ideal 8000 vrata profil - konstrukcija PVC vrata sa više komora

Uf = 1,3 W/m²K

Ideal 85mm

Made in Germany Aluplast ideal vrata - PVC vrata nemačke proizvodnje

- 85mm Ugradna dubina

- Zastakljivanje sa 2 i 3  stakla do 52mm

- Broj komora: 5

- 3 dihtung gume

- Aluskin

cena od € na upit-
Aluplast Ideal 4000 PVC vrata - osnovni model ulaznih i terasnih vrata

Uf = 1,5 W/m²K

Ideal 70mm

Made in Germany Aluplast Ideal 4000 - nemački kvalitet po pristupačnoj ceni

- 70mm Ugradna dubina

- Zastakljivanje sa 2 i 3  stakla do 41mm

- Broj komora: 4

- 2 dihtung gume

- Aluskin

cena od € na upit-

PVC klizni 

I 

PVC HST podizno klizni

Aluplast Smart Slide sistem - klizna vrata novije generacije

Uf = 0,95 W/m²K

Ideal smart-slide klizni

Made in Germany SmartSlide - nemački klizni sistemi za terase

- 140mm Ugradna dubina

- Zastakljivanje sa 2 i 3  stakla do 41mm

- Aluskin

cena od € na upit-
Aluplast podizno-klizni premium profil - tehnički detalji konstrukcije

Uf = 0,79 W/m²K

HST Ideal premium

Made in Germany Aluplast podizno-klizni - nemački sistemi za terasna vrata

- 197mm Ugradna dubina

- Zastakljivanje sa 2 i 3  stakla do 51mm

- Aluskin

cena od € na upit-
Decco logo - kvalitetna PVC stolarija po konkurentnim cenama

Decco pvc profili

Decco je Poljska kompanija specijalizovana za proizvodnju visokokvalitetnih PVC profila za prozore i vrata. Sa sedištem u gradu Jeziorki, Decco se ističe inovativnim rešenjima, modernim dizajnom i odličnim termoizolacionim svojstvima. Njihovi profili su prepoznatljivi po dugotrajnosti, otpornosti na vremenske uslove i energetskoj efikasnosti, što ih čini idealnim izborom za savremenu gradnju
Made in Poland oznaka - PVC stolarija poljske proizvodnje

PVC prozori 

I 

PVC balkonska vrata 

I 

PVC PSK uskočno klizni

Moderni PVC prozor iz DECCO 83 serije

Uf = 1,0 W/m²K

Decco-83

Made in Poland DECCO 83 - PVC prozori poljske proizvodnje sa 7 komora

- 81mm Ugradna dubina

- Zastakljivanje sa 2 i 3  stakla do 52mm

- Broj komora 7

- Aluskin

cena od € na upit-
PVC prozor iz DECCO 71 serije, ugrađen i otvoren.

Uf = 1,2 W/m²K

Decco-71

Made in Poland DECCO 71 - PVC prozori poljske izrade sa 6 komora

- 70mm Ugradna dubina

- Zastakljivanje sa 2 i 3  stakla do 42mm

- Broj komora 6

- Aluskin

cena od € na upit-

PVC ulazna vrata  

I 
Detaljno prikazan profil i brava PVC vrata DECCO 83

Uf = 1,0 W/m²K

Decco-83

Made in Poland Decco 83 vrata - PVC vrata sa poboljšanom izolacijom

- 81mm Ugradna dubina

- Zastakljivanje sa 2 i 3  stakla do 52mm

- Broj komora 7

- Aluskin

cena od € na upit-
Detalj profila i  sastava PVC vrata DECCO 71.

Uf = 1,5 W/m²K

Decco-71

Made in Poland Decco 71 vrata - PVC vrata poljske izrade

- 70mm Ugradna dubina

- Zastakljivanje sa 2 i 3  stakla do 42mm

- Broj komora 6

- Aluskin

cena od € na upit-
Savremena PVC stolarija pruža odličnu toplotnu i zvučnu izolaciju, dug vek trajanja i lako održavanje. U kombinaciji sa kvalitetnim izolacionim staklima i pouzdanim okovom, PVC sistemi postižu visoku energetsku efikasnost objekta. Za potpunu funkcionalnost otvora preporučuje se ugradnja roletni, komarnika i zaštitnih elemenata poput okapnica i podprozorskih dasaka, koji štite fasadu i produžavaju trajnost sistema.

Često postavljana pitanja o PVC stolariji

Imate pitanja? ,slobodno nas kantaktirajte.

Koje su glavne prednosti PVC profila?

PVC profili obezbeđuju odličnu termo i zvučnu izolaciju, nisku potrebu za održavanjem i dug vek trajanja, što ih čini pogodnim za stambene i poslovne objekte.

Kako PVC profili utiču na energetsku efikasnost objekta?

Višekomorna konstrukcija profila i kombinacija sa kvalitetnim staklom smanjuje gubitke toplote i doprinosi manjoj potrošnji energije.

Da li se PVC profili mogu kombinovati sa drugim sistemima (roletne, komarnici)?

Da — PVC profili se često kombinuju sa roletnama i komarnicima kako bi se poboljšala zaštita, udobnost i funkcionalnost otvora.

Alu & Pvc Project - Vaš Partner

• Ako ste u potrazi za uštedom energije i modernim dizajnom mi cemo vam izaci u susret
• Prozori i vrata koji štede energiju i jacaju bezbednost.
• Alu & Pvc Project prozori i vrata pružaju dugorocno i finansijski isplativo rešenje za vaš dom i poslovni prostor
• Odgovarajuci servis pre i posle ugradnje.


zainteresovani za saradnju? Svi koji žele da postanu deo tima Alu & Pvc Project kao distributer javite se bice nam zadovoljstvo saradjivati sa vama.