"Tehničke karakteristike Decco 71 PVC sistema"
• propustljivost vazduha zadovoljava klasu D po JUS D.E8.013
• izolaciona vrednost čitavog prozora: Max. Uw=0.86W/m2K
• zvućna izolacija: Max. R=45dB, što je više od R=33dB u klasi II po JUS U.J6.201
• otpornost prema delovanju vode je veća od zahtevane u klasi D po JUS.D.E8.011
Zastakljivanje
- podržano staklo u termopanu debljine do 44mm
Zaptivanje
- dve zaptivne gume za zaštitu od vetra,kiše i zvuka
Ojačanje
- podcinkovano čelično ojačanje u krilu i ramu za stabilnost i dugi vek trajanja
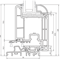
Ugradna dubina
- 71mm
Broj Komora
- 6 komora
Izolaciona vrednost
- izolaciona vrednost: Uf = 1,2W/m2K do Uf = 0,86W/m2K
Ram visina
- 64mm
Protivprovalna zaštita
- do RC2
• izolaciona vrednost čitavog prozora: Max. Uw=0.86W/m2K
• zvućna izolacija: Max. R=45dB, što je više od R=33dB u klasi II po JUS U.J6.201
• otpornost prema delovanju vode je veća od zahtevane u klasi D po JUS.D.E8.011
Zastakljivanje
- podržano staklo u termopanu debljine do 44mm
Zaptivanje
- dve zaptivne gume za zaštitu od vetra,kiše i zvuka
Ojačanje
- podcinkovano čelično ojačanje u krilu i ramu za stabilnost i dugi vek trajanja
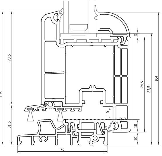
Ugradna dubina
- 71mm
Broj Komora
- 6 komora
Izolaciona vrednost
- izolaciona vrednost: Uf = 1,2W/m2K do Uf = 0,86W/m2K
Ram visina
- 64mm
Protivprovalna zaštita
- do RC2




